For more information regarding the value of a property, please contact us for a free consultation.
Key Details
Sold Price $1,350,000
Property Type Single Family Home
Sub Type Detached
Listing Status Sold
Purchase Type For Sale
Square Footage 2,013 sqft
Price per Sqft $670
Subdivision Garden Park (Garp)
MLS Listing ID PW25215754
Sold Date 10/08/25
Style Cape Cod
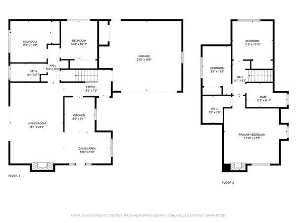
Bedrooms 5
Full Baths 2
Year Built 1965
Lot Size 6,634 Sqft
Property Sub-Type Detached
Property Description
GARDEN PARK!!! This home is perfectly located just a few doors down from the park and is just a stone's throw from Seal Beach! It is a rare S&S Plan 8 with FIVE bedroomstwo downstairs, three upstairs!! The entire house was freshly painted, with new carpet in the living room and all bedrooms. It features central air/heat, dual-pane windows, a recently replaced roof, and a brand-new oven, making it move-in ready. The fully remodeled bathrooms and huge finished attic with garage access add serious value. PLUS, it has RV parking on the side of the house for a 50-foot RV or boat or both! Additionally, with over 70-foot-wide backyard, it is perfect for toy storage and still has ample space for a pool, outdoor kitchen, or even the highly sought-after ADU addition!
Location
State CA
County Orange
Direction South of Lampson West of Valley View
Interior
Interior Features Granite Counters
Heating Forced Air Unit
Cooling Central Forced Air
Flooring Carpet, Stone
Fireplaces Type FP in Living Room
Fireplace No
Appliance Dishwasher, 6 Burner Stove, Gas Oven, Gas Stove
Exterior
Parking Features Direct Garage Access
Garage Spaces 2.0
Utilities Available Cable Available, Electricity Not Available, Natural Gas Connected, Sewer Connected
View Y/N Yes
Water Access Desc Other/Remarks
View Neighborhood
Accessibility 32 Inch+ Wide Doors
Porch Patio, Slab
Total Parking Spaces 2
Building
Story 2
Sewer Public Sewer
Water Other/Remarks
Level or Stories 2
Others
Tax ID 21731118
Special Listing Condition Standard
Read Less Info
Want to know what your home might be worth? Contact us for a FREE valuation!

Our team is ready to help you sell your home for the highest possible price ASAP

Bought with Gina Bryson IFG Realty
GET MORE INFORMATION





